About
Interior and Spatial
Visual Communication
Contact
About
Interior and Spatial
Visual Communication
Contact
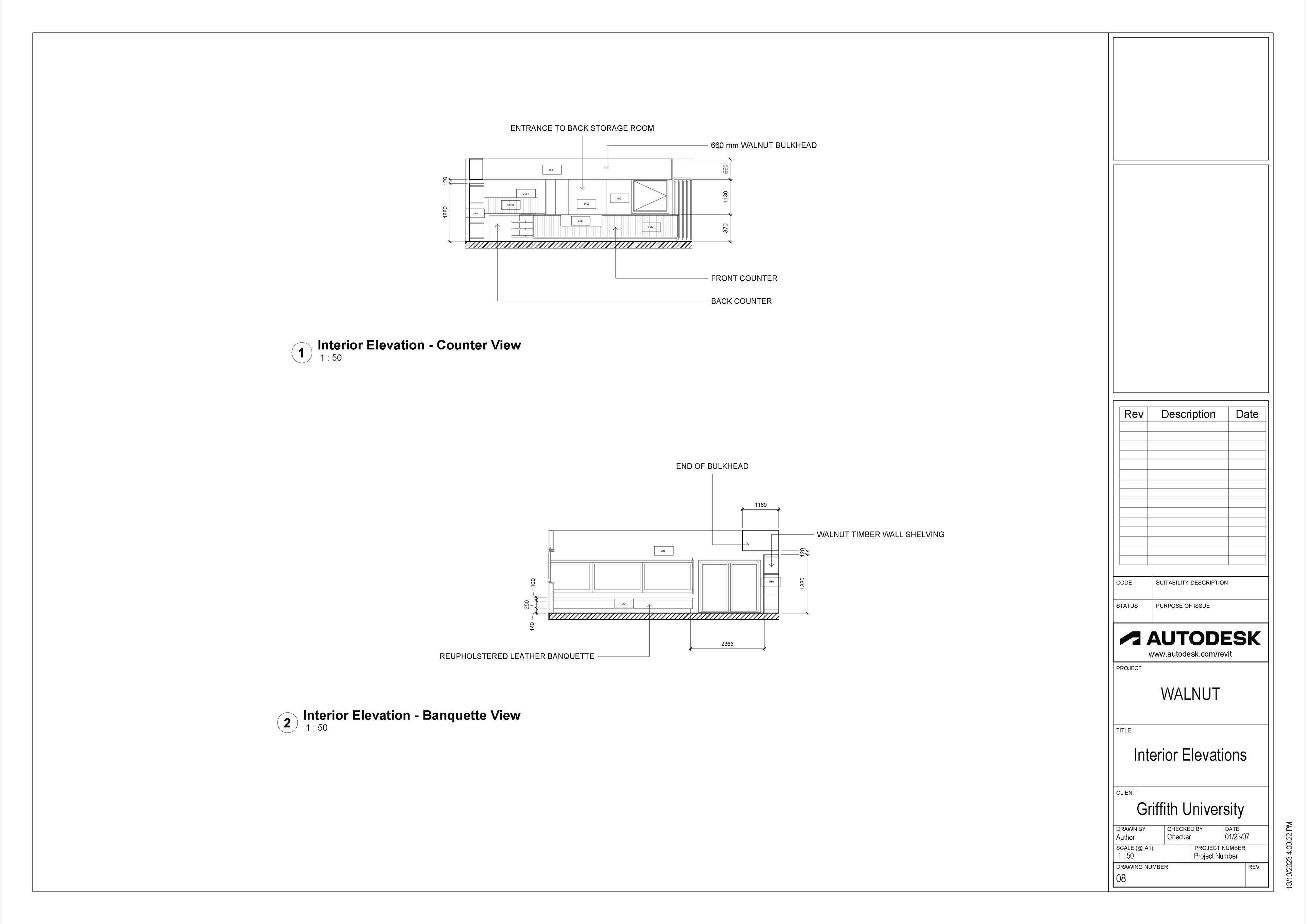
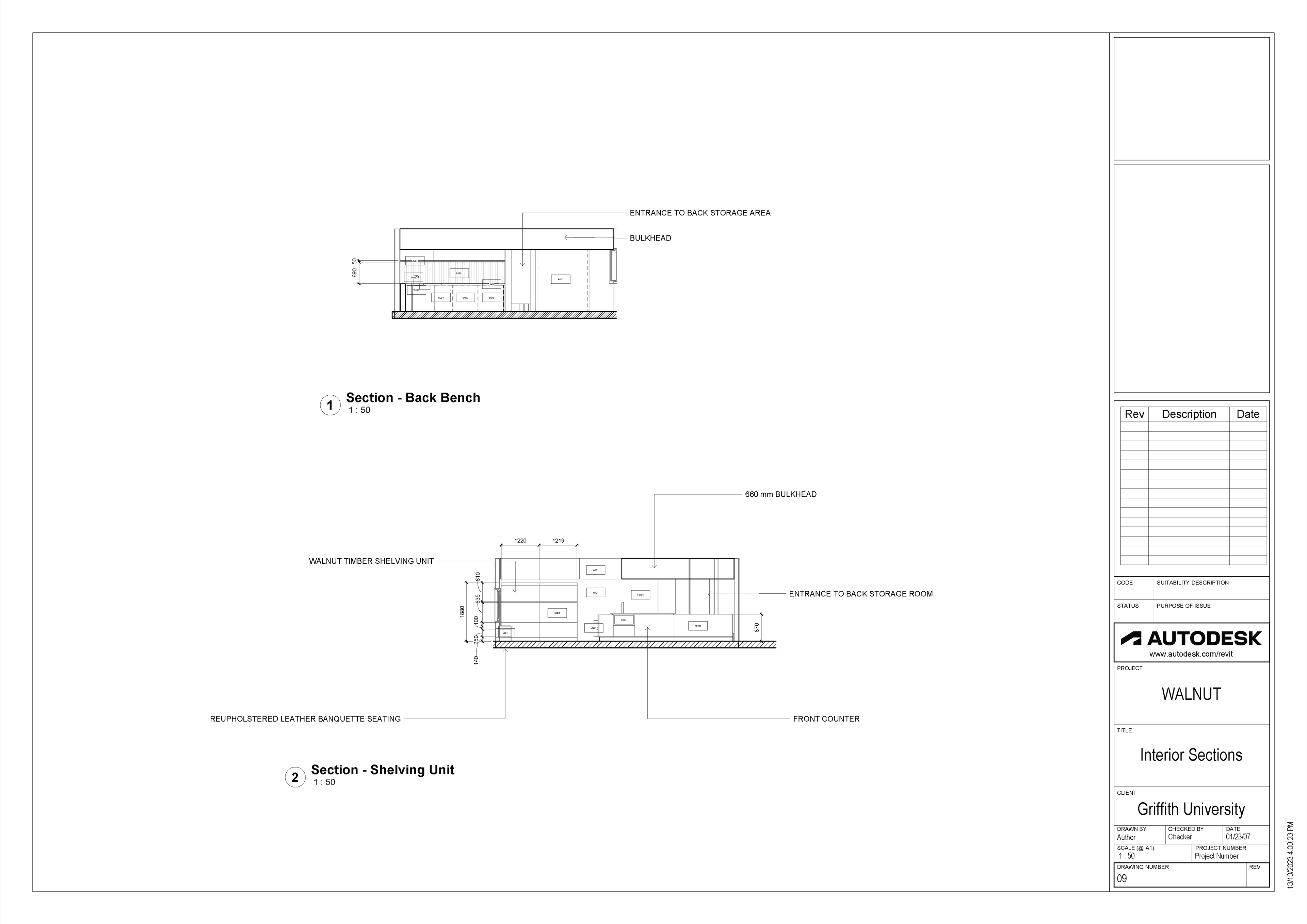
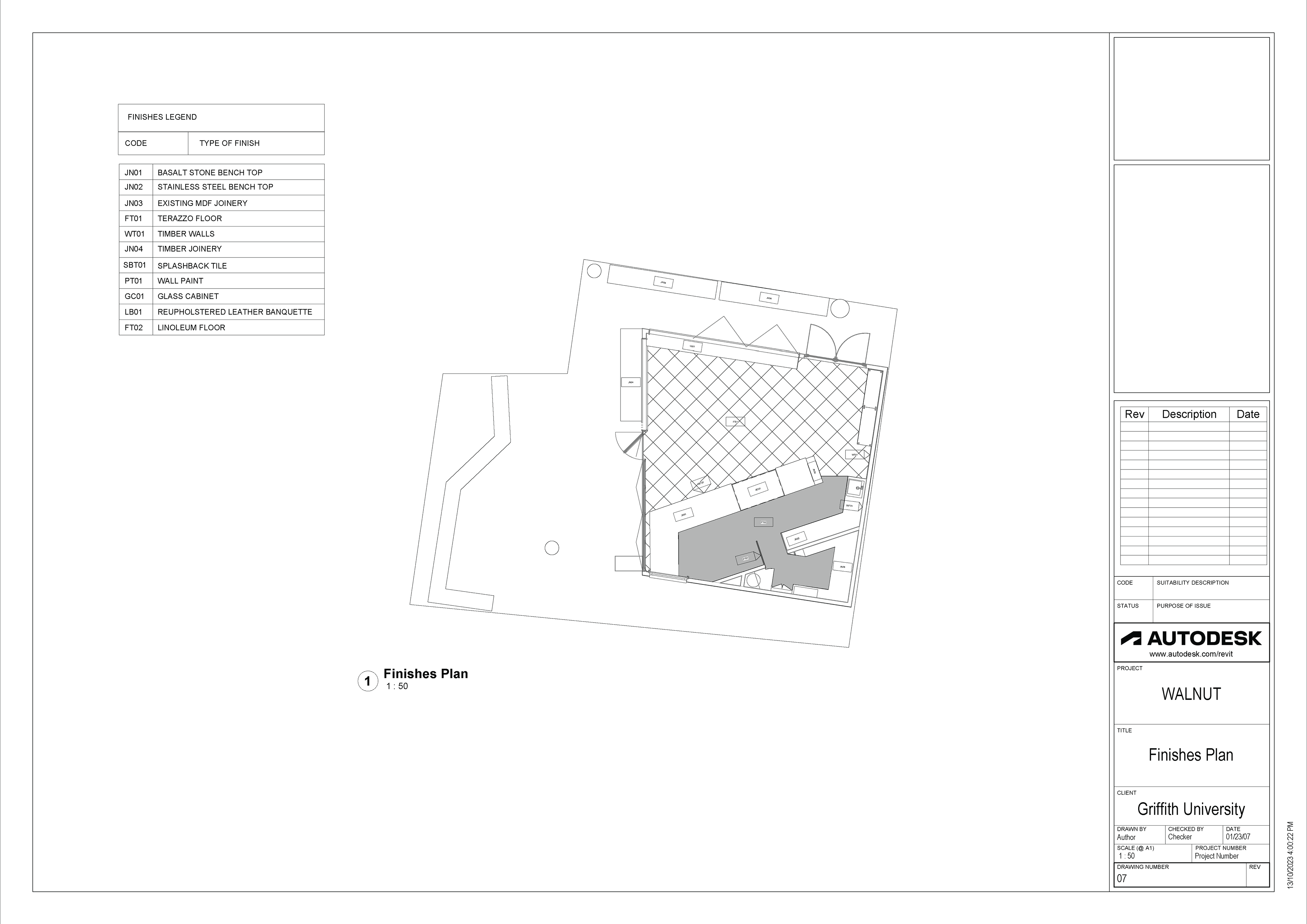
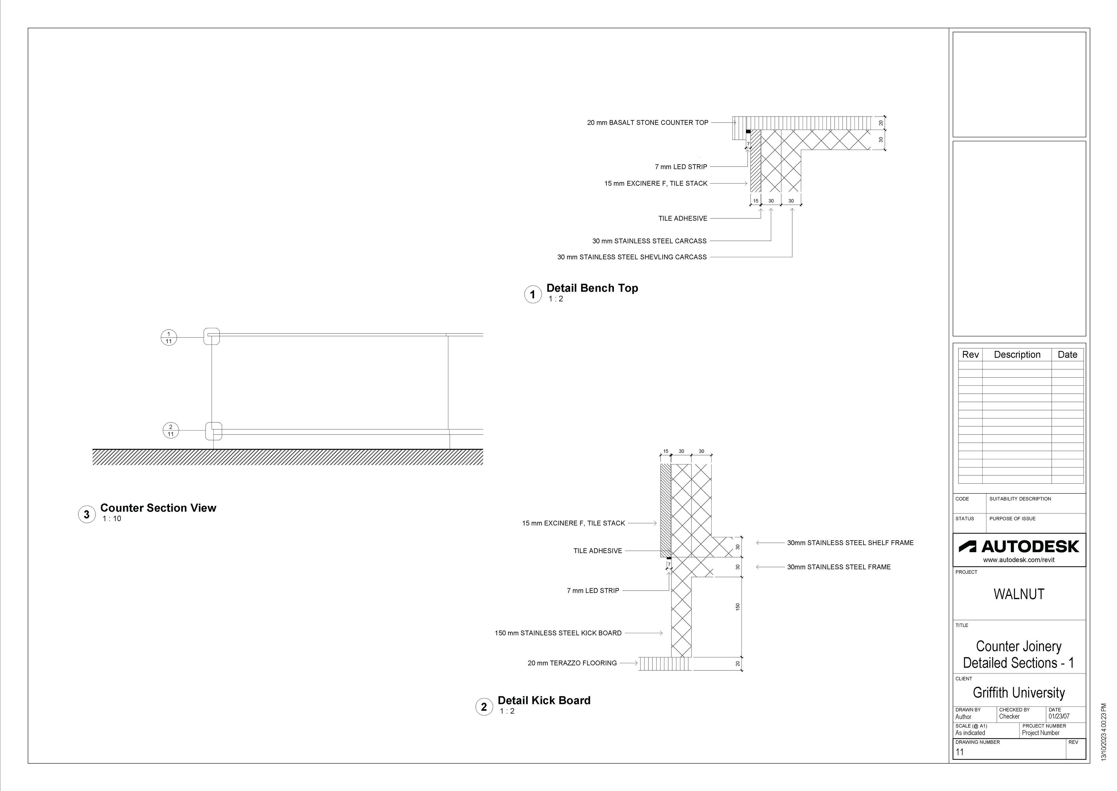
WALNUT TECHNICAL DOCUMENTATION
BACK TO WALNUT
↑
Back to Top